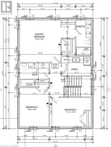
Realtyna\MlsOnTheFly\Components\CloudPost\SubComponents\RFClient\SDK\RF\Entities\RFProperty {#18199 +post_id: "5445" +post_author: 1 +"ListingKey": "27208675" +"ListingId": "X10848677" +"PropertyType": "Residential" +"PropertySubType": "Single Family" +"StandardStatus": "Active" +"ModificationTimestamp": "2026-04-28T15:10:58Z" +"RFModificationTimestamp": "2026-04-28T15:16:37Z" +"ListPrice": 1063000.0 +"BathroomsTotalInteger": 3.0 +"BathroomsHalf": 1 +"BedroomsTotal": 4.0 +"LotSizeArea": 0 +"LivingArea": 1908.0 +"BuildingAreaTotal": 0 +"City": "Saugeen Shores" +"PostalCode": "N0H2L0" +"UnparsedAddress": "LT 15 GROSVENOR Street, Southampton, Ontario N0H2L0" +"Coordinates": array:2 [ 0 => -81.38026404 1 => 44.48694604 ] +"Latitude": 44.48694604 +"Longitude": -81.38026404 +"YearBuilt": 0 +"InternetAddressDisplayYN": true +"FeedTypes": "IDX" +"OriginatingSystemName": "OnePoint Association of REALTORS®" +"PublicRemarks": "Discover the perfect custom two storey just three blocks away from the beach in Southampton, ON! This net zero certified home offers a main floor bedroom or office, spacious mudroom, a powder room, as well as an amazing great room complete with gas fireplace. Upstairs you have the primary suite/en suite, two more bedrooms, full bathroom and conveniently located laundry room! You have the option to finish the basement (extra cost) if more space is needed. The home features a charming covered front porch and is located on a quiet cul-de-sac. The lot is uniquely situated across from a quiet and private water treatment plant, ensuring no neighbors across the road. Trees and a trail will be added in front for a pleasant view. Dennison Homes Inc., a reputable local custom builder, could start Summer 2026. With their own Interior Design Team, amazing Carpenters and a Custom Cabinet Shop they can make all of your dreams come true! Don't miss out on this opportunity to build your dream home in a fantastic location! HST is included in the asking price provided the Buyer qualifies for the rebate and assigns it to the Seller on closing. (id:59439)" +"Appliances": "Garage door opener,Water Heater - Tankless,Water Heater" +"Basement": array:2 [ 0 => "Unfinished" 1 => "Full" ] +"BathroomsPartial": 1 +"Cooling": "Central air conditioning,Air exchanger,Ventilation system" +"CreationDate": "2024-07-29T04:23:35.849720+00:00" +"Directions": "From HWY-21 (Albert St. S) in Southampton turn West onto Adelaide St. then turn South onto Huron St. S. then turn East onto Island St. and then North onto Grosvenor St. The three lots are all side by side across from the water treatment plant." +"ExteriorFeatures": "Wood" +"FireplaceYN": true +"FireplacesTotal": "1" +"FoundationDetails": array:1 [ 0 => "Poured Concrete" ] +"Heating": "Forced air,Natural gas" +"InternetEntireListingDisplayYN": true +"ListAgentKey": "1971102" +"ListOfficeKey": "256065" +"LivingAreaUnits": "square feet" +"LotFeatures": array:2 [ 0 => "Flat site" 1 => "Sump Pump" ] +"LotSizeDimensions": "50 x 100 FT" +"ParkingFeatures": "Attached Garage,Garage" +"PhotosChangeTimestamp": "2024-12-04T06:51:17Z" +"PhotosCount": 10 +"Sewer": "Sanitary sewer" +"StateOrProvince": "Ontario" +"StatusChangeTimestamp": "2026-04-28T15:02:38Z" +"Stories": "2.0" +"StreetDirSuffix": "South" +"StreetName": "GROSVENOR" +"StreetNumber": "282" +"StreetSuffix": "Street" +"TaxAnnualAmount": "1429.6" +"Utilities": "Electricity,Cable,Wireless" +"VirtualTourURLUnbranded": "https://youtu.be/IgIZ2qZur_A?feature=shared" +"WaterSource": array:1 [ 0 => "Municipal water" ] +"ListAOR": "OnePoint" +"TaxYear": 2024 +"CityRegion": "Saugeen Shores" +"ListAORKey": "47" +"ListingURL": "www.realtor.ca/real-estate/27208675/282-grosvenor-street-s-saugeen-shores-saugeen-shores" +"ParkingTotal": 5 +"StructureType": array:1 [ 0 => "House" ] +"CommonInterest": "Freehold" +"GeocodeManualYN": false +"BuildingFeatures": array:1 [ 0 => "Fireplace(s)" ] +"LivingAreaMaximum": 2000 +"LivingAreaMinimum": 1500 +"PropertyCondition": array:1 [ 0 => "Insulation upgraded" ] +"ZoningDescription": "R2" +"BedroomsAboveGrade": 4 +"BedroomsBelowGrade": 0 +"FrontageLengthNumeric": 50.0 +"OriginalEntryTimestamp": "2024-07-24T12:55:16.13Z" +"FrontageLengthNumericUnits": "feet" +"ListAgentNationalAssociationId": "1258309" +"ListOfficeNationalAssociationId": "1212113" +"Media": array:10 [ 0 => array:13 [ "Order" => 0 "MediaKey" => "5861403155" "MediaURL" => "https://cdn.realtyfeed.com/cdn/26/27208675/54b2101838e46f119ba157458a356454.webp" "MediaSize" => 68284 "MediaType" => "webp" "Thumbnail" => "https://cdn.realtyfeed.com/cdn/26/27208675/thumbnail-54b2101838e46f119ba157458a356454.webp" "ResourceName" => "Property" "MediaCategory" => "Property Photo" "LongDescription" => null "PreferredPhotoYN" => true "ResourceRecordId" => "X10848677" "ResourceRecordKey" => "27208675" "ModificationTimestamp" => "2024-12-04T06:51:17.75Z" ] 1 => array:13 [ "Order" => 1 "MediaKey" => "5861403259" "MediaURL" => "https://cdn.realtyfeed.com/cdn/26/27208675/844398f1ddf75ef6cd119f7defc9b382.webp" "MediaSize" => 68157 "MediaType" => "webp" "Thumbnail" => "https://cdn.realtyfeed.com/cdn/26/27208675/thumbnail-844398f1ddf75ef6cd119f7defc9b382.webp" "ResourceName" => "Property" "MediaCategory" => "Property Photo" "LongDescription" => null "PreferredPhotoYN" => false "ResourceRecordId" => "X10848677" "ResourceRecordKey" => "27208675" "ModificationTimestamp" => "2024-12-04T06:51:17.76Z" ] 2 => array:13 [ "Order" => 2 "MediaKey" => "5861403400" "MediaURL" => "https://cdn.realtyfeed.com/cdn/26/27208675/4c06215b7d6b1c1f331193d7f018c2cc.webp" "MediaSize" => 129683 "MediaType" => "webp" "Thumbnail" => "https://cdn.realtyfeed.com/cdn/26/27208675/thumbnail-4c06215b7d6b1c1f331193d7f018c2cc.webp" "ResourceName" => "Property" "MediaCategory" => "Property Photo" "LongDescription" => null "PreferredPhotoYN" => false "ResourceRecordId" => "X10848677" "ResourceRecordKey" => "27208675" "ModificationTimestamp" => "2024-12-04T06:51:17.76Z" ] 3 => array:13 [ "Order" => 3 "MediaKey" => "5861403478" "MediaURL" => "https://cdn.realtyfeed.com/cdn/26/27208675/30773a6511a2b314c830d9774f0e78ab.webp" "MediaSize" => 101372 "MediaType" => "webp" "Thumbnail" => "https://cdn.realtyfeed.com/cdn/26/27208675/thumbnail-30773a6511a2b314c830d9774f0e78ab.webp" "ResourceName" => "Property" "MediaCategory" => "Property Photo" "LongDescription" => null "PreferredPhotoYN" => false "ResourceRecordId" => "X10848677" "ResourceRecordKey" => "27208675" "ModificationTimestamp" => "2024-12-04T06:51:17.77Z" ] 4 => array:13 [ "Order" => 4 "MediaKey" => "5861403576" "MediaURL" => "https://cdn.realtyfeed.com/cdn/26/27208675/d445298961d01af86356b1269039824f.webp" "MediaSize" => 76562 "MediaType" => "webp" "Thumbnail" => "https://cdn.realtyfeed.com/cdn/26/27208675/thumbnail-d445298961d01af86356b1269039824f.webp" "ResourceName" => "Property" "MediaCategory" => "Property Photo" "LongDescription" => null "PreferredPhotoYN" => false "ResourceRecordId" => "X10848677" "ResourceRecordKey" => "27208675" "ModificationTimestamp" => "2024-12-04T06:51:17.77Z" ] 5 => array:13 [ "Order" => 5 "MediaKey" => "5861403629" "MediaURL" => "https://cdn.realtyfeed.com/cdn/26/27208675/f942e2f1dfc8ca27e10647619a918579.webp" "MediaSize" => 72998 "MediaType" => "webp" "Thumbnail" => "https://cdn.realtyfeed.com/cdn/26/27208675/thumbnail-f942e2f1dfc8ca27e10647619a918579.webp" "ResourceName" => "Property" "MediaCategory" => "Property Photo" "LongDescription" => null "PreferredPhotoYN" => false "ResourceRecordId" => "X10848677" "ResourceRecordKey" => "27208675" "ModificationTimestamp" => "2024-12-04T06:51:17.78Z" ] 6 => array:13 [ "Order" => 6 "MediaKey" => "5861403704" "MediaURL" => "https://cdn.realtyfeed.com/cdn/26/27208675/a24ad420c29a8560c4ff3a81990cbc38.webp" "MediaSize" => 106455 "MediaType" => "webp" "Thumbnail" => "https://cdn.realtyfeed.com/cdn/26/27208675/thumbnail-a24ad420c29a8560c4ff3a81990cbc38.webp" "ResourceName" => "Property" "MediaCategory" => "Property Photo" "LongDescription" => null "PreferredPhotoYN" => false "ResourceRecordId" => "X10848677" "ResourceRecordKey" => "27208675" "ModificationTimestamp" => "2024-12-04T06:51:17.78Z" ] 7 => array:13 [ "Order" => 7 "MediaKey" => "5861403741" "MediaURL" => "https://cdn.realtyfeed.com/cdn/26/27208675/8bb974b3211a7535d6cb129f832bb008.webp" "MediaSize" => 61501 "MediaType" => "webp" "Thumbnail" => "https://cdn.realtyfeed.com/cdn/26/27208675/thumbnail-8bb974b3211a7535d6cb129f832bb008.webp" "ResourceName" => "Property" "MediaCategory" => "Property Photo" "LongDescription" => null "PreferredPhotoYN" => false "ResourceRecordId" => "X10848677" "ResourceRecordKey" => "27208675" "ModificationTimestamp" => "2024-12-04T06:51:17.79Z" ] 8 => array:13 [ "Order" => 8 "MediaKey" => "5861403773" "MediaURL" => "https://cdn.realtyfeed.com/cdn/26/27208675/b41631f1e358527a4be89a05e8a6e8dd.webp" "MediaSize" => 70333 "MediaType" => "webp" "Thumbnail" => "https://cdn.realtyfeed.com/cdn/26/27208675/thumbnail-b41631f1e358527a4be89a05e8a6e8dd.webp" "ResourceName" => "Property" "MediaCategory" => "Property Photo" "LongDescription" => null "PreferredPhotoYN" => false "ResourceRecordId" => "X10848677" "ResourceRecordKey" => "27208675" "ModificationTimestamp" => "2024-12-04T06:51:17.79Z" ] 9 => array:13 [ "Order" => 9 "MediaKey" => "5861403893" "MediaURL" => "https://cdn.realtyfeed.com/cdn/26/27208675/7b54f41e01c129a170b2c27ca830d305.webp" "MediaSize" => 59975 "MediaType" => "webp" "Thumbnail" => "https://cdn.realtyfeed.com/cdn/26/27208675/thumbnail-7b54f41e01c129a170b2c27ca830d305.webp" "ResourceName" => "Property" "MediaCategory" => "Property Photo" "LongDescription" => null "PreferredPhotoYN" => false "ResourceRecordId" => "X10848677" "ResourceRecordKey" => "27208675" "ModificationTimestamp" => "2024-12-04T06:51:17.76Z" ] ] +"DaysOnMarket": 668 +"@odata.id": "https://api.realtyfeed.com/realtyfeed/odata/Property('27208675')" +"ID": "5445" }

